Groupe scolaire Laurent-Ballesta

Gigean (34)

Informations
  • Lieu

    Gigean (34)
  • Maître d'ouvrage

    Ville de Gigean
  • Architecte Mandataire

    LCR ARCHITECTES
  • Bureaux d'études

    BETOM, CAP TERRE
  • Dates

    2018 — 2023
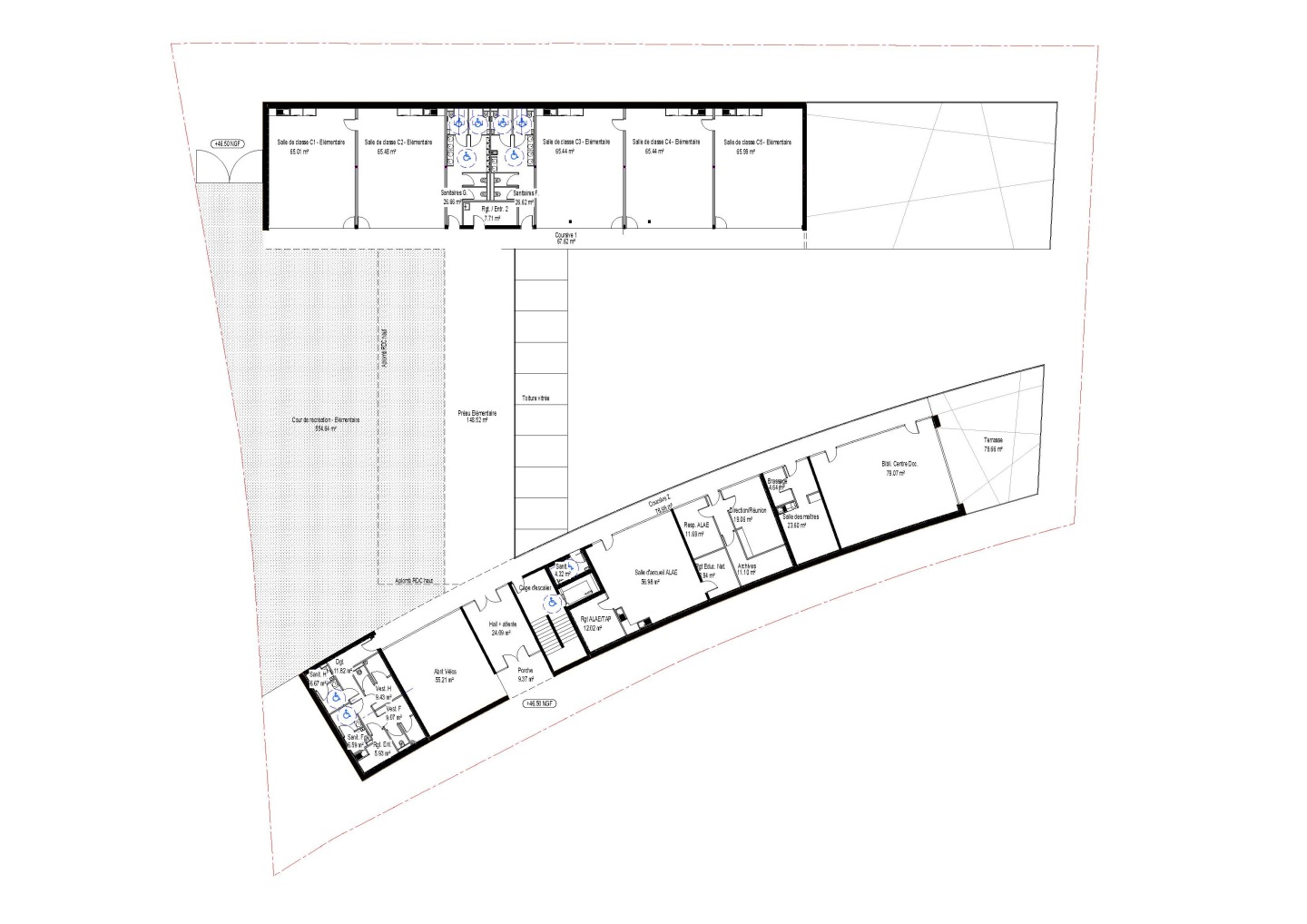
  • Surface

    2 700 m² SP
  • Coût des travaux HT

    5,61 M€
  • Type de mission

    Mission de base
  • Bâtiments Durables Occitanie, niveau Or (phase conception)

Construction d'un Groupe Scolaire BEPOS / BDO / NOWATT OR de 8 classes (école élémentaire, école maternelle, restaurant scolaire) à Gigean (34).